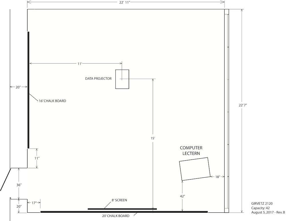
GIRVETZ 2120